Los establecimientos de salud son instalaciones esenciales destinadas a proporcionar atención de salud con calidad y calidez. La obligatoriedad de cumplir adecuadamente con la atención de los usuarios del servicio tiene connotaciones técnicas, tecnológicas, administrativas y éticas; exigencias que se mantienen en todos los momentos y circunstancias.
El establecimiento de salud requiere una amplia gama de recursos humanos, materiales, económicos y tecnológicos. Estos elementos se congregan en conjuntos integrados, donde la estructura sostiene los procesos y estos sustentan los resultados. En este conjunto todo está integrado y lo que afecte a un elemento tiene repercusión en el conjunto y en el producto final: la calidad de la atención y la seguridad de los usuarios y las usuarias de los servicios.
En este contexto, los aspectos de vulnerabilidad funcional u organizacional se refieren a la distribución y relación entre los espacios arquitectónicos y los servicios médicos y de apoyo al interior del establecimiento de salud, así como a los procesos administrativos, contrataciones, adquisiciones, rutinas de mantenimiento y a las relaciones de dependencia física y funcional entre las diferentes áreas de un establecimiento de salud.
La Política Nacional de Calidad en Salud propone entre sus objetivos el acceso a servicios de salud ofrecidos con calidad y equidad, por lo que sumado a ello, los planes de inversión en establecimientos de salud del Gobierno nacional buscan lograr la mayor y más rápida disponibilidad de servicios apropiados , mediante un diseño coherente con acabados duraderos y de fácil mantenimiento, así como adecuados a las condiciones medioambientales de nuestro país.
Establecer los parámetros técnicos estandarizados frente al diseño, construcción y dotación es esencial para optimizar los recursos económicos disponibles, en la inversión para disminuir el plazo de ejecución y asegurar su funcionamiento estructural, no estructural y funcional, así como en garantizar no solamente la calidad de la atención sino también la seguridad del personal, pacientes y familiares frente a situación de amenaza sísmica, ciclónica y otras a las cuales se pueda ver enfrentado el establecimiento de salud.
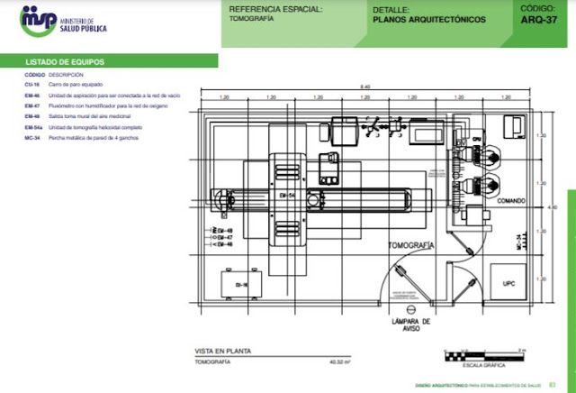
En cumplimiento de este objetivo se presenta la Guía de diseño arquitectónico para establecimientos de salud, como primer esfuerzo para establecer parámetros técnicos que orienten el planteamiento y la elaboración de diseños arquitectónicos que definan los requisitos mínimos de sus características ambientales, ayuden a la adecuada selección de los materiales de construcción y faciliten los estudios de dotación para los establecimientos de salud.
La presente guía se apoya en los requisitos de las Normas y Reglamentos de Cálculo para las Edificaciones en la República Dominicana, y en los lineamientos establecidos por la Guía del Evaluador de Hospitales Seguros de la Organización Panamericana de la Salud/Organización Mundial de la Salud (OPS/OMS).
Este documento tiene la misión de facilitar el trabajo de los profesionales de la arquitectura y las ingenierías, así como satisfacer sus requerimientos vinculados a establecimientos de salud, a través de una serie de pautas para la programación, la concepción y la seguridad en la ejecución de nuevas construcciones o la remodelación de establecimientos de salud, en consonancia con la legislación nacional vigente y los lineamientos de los ministerios de Obras Públicas y Comunicaciones y de Salud Pública.
Durante dos años, diversas instancias públicas y privadas junto a consultores nacionales e internacionales, realizaron reuniones técnicas, talleres y jornadas de formación con el objetivo de presentar al Sistema Nacional de Salud los lineamientos y criterios para el diseño, la construcción y los acabados para los establecimientos de salud, debido a que el marco general no siempre era aplicable a espacios destinados a la oferta de servicios de salud o no se disponía de criterios que orientaran el tema.
El punto de partida para la definición de esos criterios se da dentro de la iniciativa de Hospitales Seguros frente a Desastres que adoptó y está implementando el Ministerio de Salud Pública (MSP) a partir del año 2010, con el apoyo técnico de la OPS/OMS.
Esta iniciativa busca lograr la meta de que todos los hospitales nuevos se construyan con un nivel de protección que garantice mejor su capacidad de seguir funcionando en situaciones de desastres. Así mismo, se busca que se implementen medidas adecuadas de mitigación para mejorar la seguridad de los establecimientos de salud existentes, resultando en mejorías sostenibles en cuanto al acceso y a la seguridad del paciente. Dentro de sus objetivos están los siguientes:
•Establecer e implementar mecanismos de supervisión y control independientes de los proyectos de inversión, con la intervención de profesionales calificados.
•Garantizar la incorporación de criterios de protección de la vida, de la inversión y de la función en todas las etapas de los nuevos proyectos de inversión en salud.
•Actualizar las normas de diseño, construcción y funcionamiento de establecimientos de salud, con el fin de proteger los componentes estructurales, no estructurales y funcionales en casos de desastres, o que estos cuenten con las condiciones mínimas para seguir funcionando.
• Mejorar la seguridad de los establecimientos de salud existentes, priorizando aquellos que por su importancia y capacidad de resolución constituyen una parte esencial de la red de servicios de salud en emergencias y desastres.
La presente guía define y recomienda los parámetros mínimos a ser cumplidos, sin que esto signifique una limitación para la aplicación de otros parámetros que podrán utilizarse en cada región, de acuerdo a las características particulares de esta, e incorpora conceptos generales que son comunes y aplicables a cualquier establecimiento de salud.
Este documento no necesariamente constituye un diseño acabado de un establecimiento de salud, más bien proporciona una guía estandarizada de los ambientes hospitalarios de mayor demanda y conforme a los lineamientos para el cumplimiento de los estándares establecidos por el MSP para la habilitación de los establecimientos de salud.
Esta guía ha sido posible gracias al esfuerzo conjunto de instituciones públicas y privadas, así como de academias y el apoyo técnico de la Organización Panamericana de la Salud/Organización Mundial de la Salud(OPS/OMS).
Los conceptos y contenidos en este documento constituyen, como su nombre lo indica, una guía para los profesionales que desarrollan su actividad en el campo de la infraestructura de establecimientos de salud, constituyéndose en un documento de referencia obligatoria y prioritaria en estas actividades.
https://iris.paho.org/bitstream/handle/10665.2/28585/guia_disenos_arquitectonicos.pdf

No hay comentarios:
Publicar un comentario