Situado en la nueva ciudad de Fengxi, en la provincia china de Shanxi, el Mu Feng Yue Hot Spring Hotel se presenta como un refugio sereno, enclavado en la naturaleza, a escasos minutos del bullicio de la ciudad, y representa una fusión perfecta de vida. . urbana y naturaleza.
Este establecimiento no es sólo una estructura: es un entorno creado mediante la colocación estratégica de muros que redefinen y coreografían el espacio. Estas paredes pliegan y despliegan la experiencia espacial, integrando el entorno con su contexto más amplio.
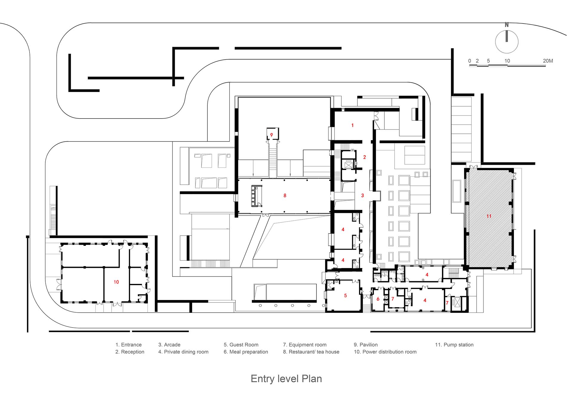
El patio hundido, adaptado a las condiciones locales, da la impresión de que la estructura emerge de manera orgánica del terreno.
La elección de materiales, como el concreto con textura de madera en tonos tierra, complementa las tonalidades naturales del entorno. Este hotel de 3.440 metros cuadrados dispone de 6 habitaciones (cada una con su propia piscina cubierta) y 8 piscinas al aire libre con duchas y salones.
Los comedores y salones de té están especializados en sabores locales. Los 10 mil metros cuadrados de zonas exteriores del hotel permiten una amplia distribución que incluye jardines, juegos de agua, césped y parterres de flores de temporada.
El hotel se convierte en una opción atractiva para quienes deseen encontrar paz y elegancia lejos de la ciudad.
En particular, este proyecto incorpora hábilmente una estación de bombeo urbano y una instalación de distribución de energía enterrada en el segundo nivel subterráneo. El edificio se construyó sobre una estructura preexistente, condicionada por las limitaciones del terreno.
Para minimizar el relleno de tierra, se han colocado de forma estratégica las funciones del edificio desde el primer nivel del sótano, utilizando el paisaje con ingenio para crear un patio hundido conectado a la planta baja mediante taludes verdes en dos lados.
Este planteamiento no sólo reduce los costos, sino que también demuestra un profundo respeto y aprovechamiento de las condiciones preexistentes del emplazamiento.
Además, el proyecto cuenta con claraboyas sensibles a la temperatura que se abre y ajustan de manera automática para mejorar la circulación del aire y regular el microclima interior, infundiendo luz natural vertical en los espacios públicos.
Una serie de aberturas que guían la luz canalizan la luz diurna hacia los niveles inferiores, fomentando la eficiencia energética. La azotea, repleta de vegetación, purifica el aire y aprovecha el agua de lluvia para ahorrar energía y refrigerar los espacios interiores.
Estos aspectos ecológicos del diseño reducen significativamente los costes operativos a largo plazo y reflejan el compromiso con la arquitectura sostenible.
DATOS TÉCNICOS
NOMBRE DEL PROYECTO - Hotel Mu Feng Yue Hot Spring
ARQUITECTOS - ESTUDIO A+
SUPERFICIE - 3.440 m2
UBICACIÓN - Ciudad nueva de Fengxi, Provincia Shanxi, China
FOTOGRAFÍA - archi-traductor
FECHA - 2023
FUENTES DE INFORMACION


































No hay comentarios:
Publicar un comentario