Casa Mérida es un proyecto ubicado en el centro histórico de Mérida. Mérida es la capital de Yucatán, pero también la capital de la cultura maya, y Yucatán representa gran parte del territorio maya mexicano.
Mérida es una ciudad donde la vida sin aire acondicionado es casi imposible, y donde era muy común utilizarlo las 24 horas del día. ¿Cómo dar un paso atrás ante este uso intenso del aire acondicionado que hoy está haciendo Mérida? ¿Y cuáles podrían ser las posibilidades que nos ofrece la arquitectura?
Con este objetivo en mente y mirando al pasado, surgió la siguiente pregunta: ¿Cómo es posible construir una arquitectura que refleje y considere la identidad de Yucatán, para que esta casa pertenezca a su territorio? En otras palabras, ¿cómo podría ser maya esta casa?
El proyecto Casa Mérida explora la relación entre la arquitectura contemporánea y tradicional, ambas conectadas a través de un uso muy simple de referencias vernáculas.
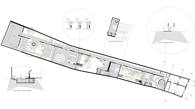
Al entrar por primera vez al sitio, una cosa que fue memorable fue la proporción única, que es un rectángulo de 80 metros de largo x 8 metros de ancho, que parece una gran calle.
Aquí surgió la única idea del proyecto: preservar esta perspectiva de 80 metros, como una línea recta, atravesando todo el terreno desde el portón de entrada hasta el final, donde se ubica la piscina; Insertando el concepto tradicional de refrigeración por flujo de aire como punto de partida.
Pero no se trataba sólo de la circulación del aire, esta larga perspectiva también se refiere a la antigua cultura y arquitectura maya, y más precisamente a su “Sacbé” maya, literalmente el camino blanco, las piedras cubiertas de estuco de piedra caliza blanca.
Con su columna de flujo de aire, Casa Mérida retomó un principio original y elemental de la arquitectura vernácula yucateca, la ventilación cruzada natural, lo que llevó al proyecto a una segunda pregunta: ¿cómo es posible lograr la mejor autosuficiencia en medio de una ciudad, sin ser tan dependiente de las tecnologías modernas, intentar ser más responsable con la gestión del desperdicio energético del lugar?
Esta siguiente inquietud llevó al proyecto hacia la idea de desconectar la casa de la ciudad para tener un mejor control sobre ella, creando básicamente una especie de situación rural aislada en medio de un contexto urbano.
Para desconectar físicamente a Casa Mérida de la ciudad, se ha modificado el diseño cambiando el área social por el área del patio trasero; enviando el salón, la cocina y la piscina al final de la parcela, además de la zona más tranquila donde ya no llega el ruido de la calle; Traer el patio funcional al frente, para utilizarlo como amortiguador en la ciudad.
Desconectar tipológicamente.
Además de la permutación entre el frente y la parte trasera, el diseño general de la casa también se organiza de acuerdo con un ritmo regular de área construida positiva y área vacía negativa, de modo que siempre se generen espacios vacíos a ambos lados de los espacios construidos, asegurándose de que que los jardines participen en lugar de ser sólo yuxtaposiciones ornamentales.
Los espacios exteriores se integraron como parte del espacio interior, difuminando la clásica frontera entre interior y exterior, aumentando la profundidad visual para crear una amplitud más generosa de los volúmenes.
Casa Mérida invierte el esquema clásico de la casa con su jardín, para crear un jardín habitable singular con su casa.
Para desconectar eléctricamente.
Para concluir, después de aislar sensatamente la casa, llegó el último punto evidente de desconectar la casa, eléctricamente hablando, de la ciudad.
Para completar un ciclo completo de regeneración hídrica, el agua de lluvia debía regresar al subsuelo, y para cumplir esta función se diseñaron pozos de absorción, colocados bajo colectores de agua esculturales, que pasaron a formar parte de la estética de la vivienda.
También se desconectó el sistema de aguas residuales del sistema de la ciudad, utilizándose un biodigestor para tratar el agua sucia y generar riego para el jardín.
Se ha completado el ciclo completo desde el bombeo hasta la regeneración, sin que la ciudad se haga cargo de nuestro agua desperdiciada.
El último punto fue la electricidad, solucionado mediante el uso de tecnologías obvias pero adecuadas, como calderas solares para calentar el agua, así como paneles solares para cubrir el resto de necesidades eléctricas.
Reconectarnos culturalmente.
El proyecto pretende deshacerse de lo innecesario, sin acabados y sin decoración, para conservar sólo la parte estructural, así como sólo los materiales sencillos.
Los muros de piedra color crema maya se han construido de forma tradicional cubriendo las juntas con astillas de piedra, una piedra típica de Yucatán utilizada en las pirámides y templos mayas.
También se ha utilizado hormigón en bruto para pisos y paredes, definitivamente industrial pero aún producido localmente en Mérida, principal material estructural.
Finalmente, para controlar la atmósfera luminosa, se han diseñado enormes ventanas y puertas de lamas de madera. La construcción alcanza el 90% en el sitio, con materiales locales y construida exclusivamente por albañiles y carpinteros yucatecos, una especie de reinterpretación moderna de lo que podría significar la arquitectura vernácula.
Fabricada con materiales masivos que no requieren tratamientos ni mantenimiento especiales, aceptando el envejecimiento y el tiempo como parte del proceso arquitectónico, la casa ha sido conceptualizada para terminar algún día cubierta por una nueva capa de materialidad: una capa de pátina.
SOBRE EL AUTOR
Ludwig Godefroy es un arquitecto radicado en México que trabaja principalmente con hormigón.
Godefroy remonta su afinidad por el brutalismo a una juventud que pasó jugando en búnkeres abandonados de la Segunda Guerra Mundial en el pequeño pueblo de pescadores donde creció.
"Me interesé mucho por la [arquitectura] brutalista debido a mi sensibilidad por el hormigón, debido a mi infancia: esos búnkeres"
Su interés por el estilo se consolidó aún más al estudiar la obra del influyente modernista franco-suizo Le Corbusier , que fue un foco importante del plan de estudios durante sus cursos de arquitectura en París.
"Me gusta mucho el hecho de que es una arquitectura muy simple y honesta, sin acabados"
FUENTES DE INFORMACION
CITAS DEL ARQ. LUDWIG GODEFROY

No hay comentarios:
Publicar un comentario