La residencia está ubicada en una comunidad cerrada en la ciudad de Barbalha, región de Cariri, en el sur de Ceará, en un terreno rectangular de 10 m de ancho y 23 m de profundidad.
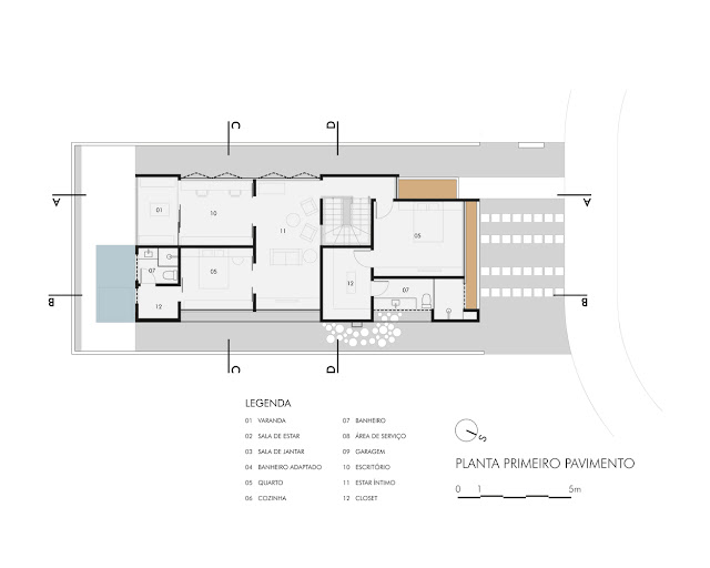
El programa de necesidades consta de tres suites, dos en la planta superior y una en la planta baja, con baño adaptado para alojar a los padres mayores del propietario. El área social, sala, comedor, cocina y un pequeño balcón que alberga un jacuzzi tienen sus espacios todos integrados.
En la planta superior, además de las dos suites, también se encuentra un despacho y un salón íntimo. El garaje está diseñado para dos coches. Todo este programa se cubrió en una superficie de 210m², incluyendo planta baja y planta alta.
Los espacios se distribuyeron primando la continuidad, con escasos muros divisorios, integrando el interior y el exterior abriendo sus grandes marcos con contraventanas de madera tipo “tabicón” al jardín exterior. Estas contraventanas tienen aperturas independientes y dirigen el viento según las necesidades de los residentes.
La residencia está ubicada en una parcela llana con los planos de fachada más grandes orientados al suroeste y noreste. Esta orientación llevó a la adopción de algunos elementos de mitigación climática, como un gran panel de madera, cuyo diseño fue inspirado por el artista moderno Athos Bulcão, que protege la fachada suroeste, filtrando la luz solar directa y suavizando su carga térmica.
La escalera está bañada de luz natural a través de un tragaluz que ilumina un jardín interno y, a diferencia de cualquier otro elemento de la casa, fue realizada en chapa metálica pintada de rojo, desplegándose como un origami con cada escalón.
La residencia está marcada por tres grandes volúmenes que destacan, uno de los cuales es el tanque de agua. La elección de acabados y materiales como textura blanca, madera y hormigón corroboran la pureza del edificio.
DATOS TÉCNICOS
Nombre del proyecto: Residencia C
Ubicación: Juazeiro do Norte – CE
Año de finalización de la obra: 2017
Superficie total construida (m2): 210,29 m²
Arquitectos responsables: Cintia Lins y George Lins
Pasantes: Alana Aragão, Gabriela Brasileiro, Alice Teles y Paula Thiers
Fotógrafo: Joana França
SOBRE LOS AUTORES
La oficina de Lins Arquitetos Associados fue fundada en 2011 y está ubicada en el interior del noreste, más precisamente en Cariri, al sur del estado de Ceará, en la ciudad de Juazeiro do Norte. Trabaja a todas las escalas y con diferentes programas, partiendo de la ciudad, pasando por el edificio hasta llegar al mobiliario.
Su directriz fundamental es el respeto al lugar de intervención, adaptando el edificio al clima, absorbiendo aspectos culturales y utilizando necesariamente materiales y mano de obra presentes en la región. Creemos que las soluciones arquitectónicas no son reproducibles y dependen directamente del lugar en el que se insertan.
La experimentalidad es una búsqueda constante de la oficina, siempre con el objetivo de llevar la innovación al resultado final, sin renunciar a técnicas constructivas ya utilizadas y consolidadas.
Equipo :
Cíntia Menezes Lins de Matos , arquitecta y urbanista egresada de UNIFOR en 2007
Deborah Martins de Oliveira Lins , arquitecta y urbanista graduada en UFC en 2006, maestría en Ingeniería Civil en UFC en 2013
Jorge Mauro Soares Lins , arquitecto y urbanista egresado de la UFC en 1975
George de Menezes Lins , arquitecto y urbanista graduado de UFC en 2006
FUENTES DE INFORMACIÓN




No hay comentarios:
Publicar un comentario