Akihisa Hirata: Museo de Arte y Biblioteca en Ota, Japón
Protagonista:Akihisa Hirata,
Con el proyecto del Museo de Arte y Biblioteca en Ota, Japón, Akihisa Hirata recalifica la entrada norte de la estación de trenes incentivando el tránsito peatonal hacia el centro histórico de la localidad.
El Museo de Arte y Biblioteca de Ota proyectado por el arquitecto japonés Akihisa Hirata, es un experimento que combina un museo con un centro comercial, con el fin de revitalizar el entramado urbano en la zona de la estación de trenes de la ciudad.
La intención del ayuntamiento de Ota era incentivar a la gente a utilizar la entrada norte de la estación de trenes a todas las horas del día. Antes era una zona que prácticamente los peatones no utilizaban, ya que los viajeros al salir de la estación se dirigían a los coches para desplazarse a otras áreas con centros comerciales.
Esto contribuía a que el centro histórico se fuera quedando cada vez más desolado. Ota es una ciudad de unos 220.000 habitantes y los pasajeros que transitan por la estación ferroviaria son unos 10.000 al día. La arquitectura de frontera del nuevo Museo de Arte y Biblioteca de Akihisa Hirata actúa estimulando a esta categoría de usuarios, pero no con una banal oferta comercial, como suele ocurrir en la mayoría de los centros de tránsito, sino con un objetivo formativo y cultural que refleja la historia de la ciudad.
Esta inspiración se plasma de varias formas. Por un lado, se llevó a cabo una investigación dedicada a recuperar los símbolos históricos de la ciudad que podían contribuir a definir las formas de la nueva construcción. Uno de los símbolos implícitos está vinculado con la industria: antiguamente la Nakajima Aircraft Company, la empresa que construyó el avión Nakajima, que se consideraba el mejor caza japonés de la II Guerra Mundial, contaba con un establecimiento en Ota.
De ahí nació la idea de que la nueva edificación debiera parecer como trazada por el viento, enroscada sobre sí misma, sin confines espaciales concretos, como si fuera una especie de vórtice que contribuye a estimular el movimiento de los transeúntes. Otra referencia es paisajística: el Tenjinyama kofun, un gran túmulo que se remonta al siglo V, y que inspiró la idea de que el nuevo espacio se presentara como una especie de monte en la ciudad, un ambiente artificial con numerosos itinerarios externos en varios niveles, y con una cubierta ajardinada que reintegra el terreno ocupado por el edificio.
Desde el punto de vista de la tradición, la construcción es sede de una colección de arte y artesanía de Ota, y tanto el museo como la biblioteca que se han instalado son los depositarios de objetos y documentos sobre las tradiciones y la sabiduría del lugar, que se utilizan para promover las actividades de tipo didáctico y creativo orientadas especialmente a los más jóvenes. Tanto la intención arquitectónica como la de los contenidos aspiraban a un espacio interno que no estuviera dividido en parcelas, sino que resultara fluido, a lo que contribuyen las numerosas superficies acristaladas.
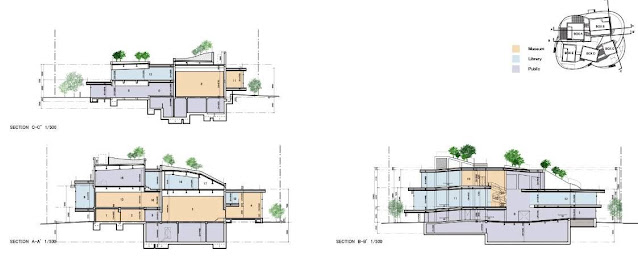
El espacio se reparte en tres plantas a las que se añade la terraza en la azotea. En la planta baja se encuentran los espacios de ocio como la cafetería y otros dedicados al relax, y a medida que se sube se encuentran las salas de exposiciones, las de lectura y los laboratorios. No existen barreras y todos los espacios resultan accesibles desde puntos distintos, con la idea de que la gente se mueva, también entre el interior y el exterior, como si uno estuviera de paseo por la ciudad y como si a cada meta se pudiera llegar por la vía más breve, pero también mediante agradables desvíos entre los itinerarios.
El complejo está formado por cinco edificios de cemento armado, un pequeño poblado envuelto por una piel de cristal y acero que apoya sobre esbeltos pilares. Los cinco volúmenes se elevan y culminan con una cubierta ajardinada a la que se puede acceder para un rato de lectura o para contemplar la vista. Las sendas panorámicas creadas con varias inclinaciones que enlazan los volúmenes quedando semiocultas en la vegetación, nos llevan a imaginar el ascenso a una montaña en plena ciudad.
El acceso se puede realizar por tres entradas, este, sur y oeste, mientras que los recorridos son completamente libres. En el centro de la planta hay una escalera helicoidal que conecta la segunda y la tercera planta y que constituye el eje de rotación imaginario del “vórtice arquitectónico”.
Tanto la solución formal como el programa de organización de los espacios internos son el resultado de un proceso de proyecto coparticipado llevado a cabo con los ciudadanos de Ota que respondieron con entusiasmo a la convocatoria del alcalde. No es fácil dar una definición a este lugar que combina un fuerte componente simbólico con el uso funcional de un espacio que antes no existía, o mejor, que no era otra cosa que la salida norte de la estación de Ota.
Mara Corradi
DATOS TECNICOS
Architects: Akihisa Hirata
Client: Mayor of Ota
Location: Ota, Gunma, JAPAN
Structural design: ARUP
Gross useable floor space: 3152.85 sqm
Competition: 2014
Start of work: April 2014
Completion of work: December 2016
Structure in: Reinforced Concrete and steel
Facades in: Glass
Indoor surfaces: RC, Pb
Outdoor surfaces: Glass
Photographs: © Daici Ano
Fotógrafo:Daici Ano,
Ciudad:Ota, Gunma, Japón,
Sección:Bibliotecas, Museos,
Materiales:Metalúrgico, De cristal,
TAGS:Reurbanización,
AKIHISA HIRATA ARQUITECTO
Arquitecto, Profesor, Universidad de Kyoto
Nacido en Osaka en 1971. Completó la Escuela de Graduados de Ingeniería de la Universidad de Kyoto en 1997. Después de trabajar en Toyo Ito Architects, estableció Akihisa Hirata Architects en 2005. Se mudó a la Universidad de Kyoto desde 2015. Actualmente es profesor en la Universidad de Kyoto.
Las obras principales incluyen "Masuya Main Store" (2006), "sarugaku" (2008), "Bloomberg Pavilion" (2011), "Ota City Museum and Library", "Tree-ness House" (2017), "9h Projects" ( 2018).-), "Casa superpuesta" (2018), "Museo de artes escénicas tradicionales de los ciudadanos de Yatsushiro" (2021), etc.
También ha dado conferencias en la Bauhaus (Alemania), la Universidad de Harvard (EE. UU.), la Fundación de Arquitectura (Reino Unido), etc. Además, ha realizado exposiciones individuales en Tokio, Londres, Bélgica, etc., y ha realizado conjuntamente la exposición "Constelación Japonesa" (2016) en el MoMA (Museo de Arte Moderno de Nueva York). Expuesto en Milano Salone, Art Basel, etc.
FUENTES DE INFORMACIÓN





















No hay comentarios:
Publicar un comentario