DATOS TECNICOS
DENOMINACION Centro Cultural Casa Ballena en San José del Cabo
PROYECTO RIMA Design Group arquitectos
TIPOLOGÍA Centro cultural Cultura / Ocio
MATERIAL Tierra compactada
FECHA 2019
CIUDAD San José del Cabo
PAÍS México
FOTÓGRAFO Rafael Gamo Rory Gardiner
San José del Cabo se sitúa en el municipio de Los Cabos, en el estado mexicano de Baja California Sur. Se caracteriza por un paisaje desértico, con gran variedad de cactus, que contrasta con la cercanía del mar.
Aprovechando la topografía del lugar, el estudio de arquitectos RIMA —dirigido por Gerry Rivero y Maritere Rivero— proyecta este centro cultural a distintas alturas a partir de la excavación y el movimiento de tierras, optimizando las vistas al entorno.
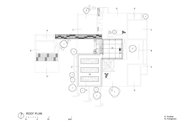
Con una superficie construida de 650 metros cuadrados, el conjunto realizado con tierra compactada incluye tres talleres, una galería, patios de usos múltiples y un área administrativa.
La orientación de los volúmenes depende de su función, dirigiendo los talleres hacia el norte mientras que el área administrativa y las futuras residencias de artistas tienen vistas al sur.
Coronada por un mirador con vegetación, la galería está iluminada cenitalmente con aperturas que permiten una mejor difusión de la luz sobre las piezas artísticas. Los talleres de tipografía y pintura tienen la misma orientación que la galería, lo que permite a los artistas desarrollar sus obras con la misma iluminación que recibirán cuando estén expuestas.
Casa Ballena es un centro de arte que busca ofrecer la experiencia más singular de artista en residencia en Los Cabos a artistas mexicanos e internacionales. Fue concluida en diciembre de 2019, representa el proyecto de diseño y construcción más prestigioso de RIMA hasta la fecha, desde el diseño de interiores hasta el diseño del paisaje exterior; una demostración de lo que nuestro equipo puede hacer.
Los 7 edificios de tierra apisonada, frente a la marina y el océano de Puerto Los Cabos, emergen de la topografía y el suelo naturales del sitio, creando espacios interiores y exteriores orgánicos para que los artistas exploren y utilicen. El método de construcción es tapial, el cual fue elegido por Gerry Rivero como un material de diseño estético y pasivo que representaba el sitio y el proceso artesanal del arte creado en el centro.
LOS PATIOS ESTÁN FORMADOS
POR LOS TALLERES
QUE RODEAN CADA ESPACIO.
LOS AUTORES
GERRY RIVERO - ARQUITECTO PRINCIPAL / FUNDADOR
Gerry obtuvo su licenciatura en estudios de arquitectura de la Universidad Iberoamericana de la Ciudad de México y su maestría del programa de Arquitectura y Diseño Urbano de la UCLA.
Su asociación con Mark Mack en UCLA se convirtió en un trabajo como miembro del equipo de diseño de Mark Mack Architects. Los veinte años de experiencia de Gerry, obtenidos de una variedad de proyectos de arquitectura en los Estados Unidos, México, Egipto, China y otros lugares, incluyen proyectos residenciales, de hospitalidad, bibliotecas públicas y desarrollo privado.
Su trabajo con diseñadores, arquitectos, constructores, educadores y autoridades municipales ha construido una red internacional de profesionales en arquitectura, diseño y desarrollo.
MARITERE RIVERO - DIRECTORA DE DISEÑO
Originaria de Morelos, México, Maritere tiene una licenciatura en Arquitectura de la Universidad Autónoma de México - UNAM, la cual obtuvo con honores en 2015, complementando su educación en l'École Nationale Supérieure d'Architecture de Paris La Villette, Francia.
Inició su carrera profesional trabajando en el Taller de Arquitectura Mauricio Rocha + Gabriela Carrillo donde colaboró en proyectos públicos como la Biblioteca para Ciegos y Deficientes Visuales, así como varios proyectos residenciales. Posteriormente, se incorporó a la firma de Miguel Montor desarrollando principalmente proyectos educativos y residenciales. Durante su colaboración de 2 años en esta firma fue ascendida a Gerente de Diseño.
En 2015 se mudó a Los Cabos para colaborar con RIMA en el proyecto Casa Ballena. Maritere es actualmente Gerente de Diseño de nuestro equipo, donde lidera proyectos residenciales y culturales enfocados tanto en arquitectura como en diseño de interiores.
RIMA DESIGN GROUP
El lanzamiento de RIMA en 2009 marcó el surgimiento de una de las principales firmas independientes de arquitectura, diseño y gestión de proyectos de Los Cabos. RIMA representa el último desarrollo en la carrera de su fundador, Gerry Rivero.
El enfoque y la solución integrada de RIMA a las necesidades actuales del mercado de casas personalizadas se han implementado a lo largo de los trece años en Los Cabos.
La administración eficaz de la construcción de RIMA, la finalización a tiempo y el método de pago simple contribuyen a que nuestros clientes disfruten de una experiencia sin complicaciones. Solo los mejores ingenieros, arquitectos y profesionales administran y dirigen la mano de obra altamente calificada.
En 2011, la experiencia internacional de RIMA en el diseño de resorts de lujo creció con la comisión de su primer proyecto de diseño de spa en Guangzhou, China.
En 2018 el Centro Cultural Casa Ballena se convirtió en uno de los proyectos culturales más grandes de Los Cabos. RIMA planteó el desafío de diseñar construir todo el proyecto con la tecnología constructiva de Tierra Apisonada.
Para 2020, RIMA ha completado 4 proyectos en el prestigioso desarrollo de Chileno Bay Golf and Beach Club. Uno de los proyectos destacados es Casa Cielito, una residencia histórica que está siendo completamente intervenida por RIMA, y que pronto será inaugurada en enero de 2021.
Actualmente, RIMA está diseñando y construyendo residencias personalizadas y diseñando los mejores hoteles boutique, entregando proyectos completos llave en mano al proporcionar servicios internos de diseño de interiores y paisajismo.
FUENTES DOCUMENTALES























No hay comentarios:
Publicar un comentario