DATOS TECNICOS
Museo de Arte Fotográfico de Seúl
Tipo. Edificio Cultural
Ubicación. Seúl, Corea del Sur
Fecha. 2019
Cliente Estado.
Diseño conceptual
Tamaño. 6.337 m²
Concepto del Proyecto.
Partimos de la idea básica de que un Museo de Arte Fotográfico debe ser una celebración de la luz y de cómo el espacio y la arquitectura pueden ser elaborados por la multiplicidad de atmósferas y efectos que es capaz de crear al viajar a través de los materiales. Nuestra propuesta busca brindar un viaje inspirador a través de diferentes atmósferas de luz que van en sintonía con el propósito específico de cada espacio.
Propuesta Formal.
Después de estudiar la tensión entre las formas ortogonales deconstruidas del 50 Plus Campus y la forma futurista del RSM, optamos por un enfoque más matizado y nos decidimos por un edificio de forma cúbica.
Luego, este cubo se eleva en las esquinas y da la bienvenida a los visitantes a un vestíbulo de forma triangular. El recorrido por el edificio continúa a través de un conjunto de escaleras mecánicas que guían al visitante por los diferentes espacios expositivos y educativos.
La Piel del edificio:
Para la fachada del edificio, exploramos el efecto de dispersión. En óptica, la dispersión se refiere a cómo una longitud de onda cambiante de la luz, refractada a través de un material, separa la luz en sus colores constituyentes.
Por eso ideamos una piel que incorpora prismas acrílicos como su capa más externa atrapando y rompiendo la luz del sol mientras la filtra deliberadamente en los diferentes espacios del edificio. A través de la gradación, los paneles prismáticos aumentan su ángulo y longitud a medida que se elevan hacia el interior del edificio con el objetivo de maximizar la cantidad de luz, son capaces de reflejar, refractar y dispersar.
Por el contrario, un panel de sombra con un revestimiento con acabado de espejo en el extremo interior del sistema de fachada reduce la cantidad de luz en cada nivel, protegiendo las galerías del museo del resplandor directo y los dañinos rayos UV, al tiempo que proporciona una luz difusa óptima para las obras de arte. y su observación por parte de los visitantes.
La calidad e intensidad de la luz cambiante a lo largo del día y del año proporcionan un brillo siempre cambiante al museo, una piel camaleónica que cambia constantemente el carácter del edificio.
El Sitio del proyecto
El edificio está apartado del sitio y abre una plaza compacta en el frente del museo. Este espacio público se articula con la calle peatonal y está enmarcado tanto por el SPAM como por el RSM. Esta plaza abierta cuenta con dos piscinas poco profundas que reflejan los intrincados patrones de la fachada, y entre ellas un patio hundido prepara el escenario para actuaciones, exhibiciones de obras de arte o simplemente actúa como una extensión de la cafetería del museo.
Programa del Proyecto.
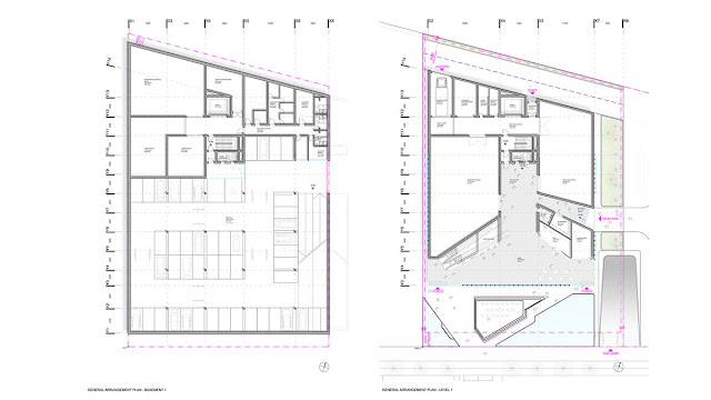
Los usos del museo se han agrupado en el programa según sus necesidades de altura. Las galerías 1 y 2 son espacios a prueba de luz ubicados junto al vestíbulo del museo en el piso 1. El muelle de carga y la entrada del personal también se encuentran en el piso 1, a los que se accede a través de una vía de servicio en el lado norte del edificio. Una vez dentro del museo, las obras de arte se pueden distribuir -discretamente para el visitante- en salas de almacenamiento, preparación y galerías a través de un ascensor exclusivo para obras de arte y una red de circulación trasera que conduce a la parte trasera de cada galería.
Las galerías 3 y 4 (espacio libre de 8 m) se encuentran en el nivel superior y se benefician plenamente de la iluminación difusa que se filtra a través de las profundas luces del techo; Ambas galerías están planificadas como un gran espacio abierto con la opción de tener una partición si es necesario. El denso patrón de rejilla del techo está equipado con una red de rieles de iluminación que permiten una total flexibilidad en la colocación de las obras de arte.
Los espacios de almacenamiento de obras de arte se ubican en la parte trasera del mismo nivel superior, beneficiándose también de un espacio libre de techo de 8 m, con la opción de introducir un entrepiso a largo plazo. Las salas de preparación se encuentran adyacentes a estos espacios de almacenamiento.
La planta sótano del edificio se ha situado a -4,5m compartiendo el mismo nivel con el aparcamiento del Robot Science Museum. Si bien el SPAM cuenta con su propia rampa de acceso y salida del aparcamiento, ambos aparcamientos podrían conectarse si fuera necesario.
Espacios Interiores
Los materiales del interior contrastan el blanco y el negro. Mientras que el vestíbulo del museo y los vestíbulos de distribución están revestidos con vidrio negro reflectante pintado en la parte posterior que se asemeja a una película fotográfica, las galerías son cajas de iluminación de color blanco opaco con pisos de terrazo blanco sin costuras que permiten una flexibilidad total para la exhibición de obras de arte. Este principio básico se repite en cada nivel y está diseñado para establecer un flujo intuitivo para el visitante.
El museo estará equipado con un sistema de suelo elevado que permitirá un sistema de ventilación por suelo radiante. Esta es una forma más sostenible de ventilar un espacio alto y, al hacerlo, libera el techo para un sistema de iluminación del techo más refinado. Todas las galerías cuentan con puertas de entrada altas y correderas que se pueden cerrar durante los tiempos de preparación de la exposición. Esto asegura que las galerías se puedan compartimentar y trabajar en ellas sin afectar el funcionamiento de otras áreas del museo.
Sobre la Estructura
Prevemos una fachada estructural en forma de una densa estructura de celosía de acero que se conecta al núcleo de hormigón armado con vigas de acero que se extienden hasta 15 metros de longitud. Este sistema permite espacios de exposición sin columnas, lo que permite una total flexibilidad en el diseño de la exposición.
Equipo de proyecto:
Arquitecto diseñador: AIDIA STUDIO: Rolando Rodriguez-Leal, Natalia Wrzask, Jose Luis Mulás.
Arquitecto local: ArchiWorkshop: Hee-Jun Sim, Su-Jeong Park, Ho-Sun Sim
Datos del proyecto
Tamaño: 6337 m²
Tipo: Museo, Edificio Cultural
Programa: 4 salas de exposición, sala de vídeo, centro de educación e investigación
Estructura: Fachada estructural, estructura de celosía densa Fachada de armadura de acero
Paneles prismáticos que dispersan la luz
Arquitecto Diseño: AIDIA STUDIO: Rolando Rodriguez-Leal, Natalia Wrzask, Jose Luis Mulás.
Arquitecto local: ArchiWorkshop: Hee-Jun Sim, Su-Jeong Park, Ho-Sun Sim
Imágenes AIDIA STUDIO.
SOBRE LOS AUTORES
El estudio de arquitectura AIDIA STUDIO, con sede en Londres y México, ha presentado su propuesta de diseño para el Museo de Arte Fotográfico de Seúl que presenta una fachada dinámica para maximizar la luz a través de sus paneles prismáticos.
AIDIA STUDIO , Miembro Profesional de World Architecture Community , es una agencia de arquitectura y diseño fundada por Rolando Rodriguez-Leal y Natalia Wrzask. El estudio produce proyectos en múltiples tipologías y diversas escalas, desde planes maestros hasta diseño de interiores.
FUENTES DE INFORMACION
























No hay comentarios:
Publicar un comentario