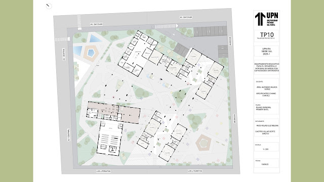
OBJETIVO GENERAL
Diseñar un equipamiento educativo para niños con diversidad funcional y que se adapta a sus condiciones y necesidades como usuario.
Actualmente en el distrito de SJL los niños con diversidad funcional no tienen a su disposición una infraestructura adecuada que responde a las características específicas del usuario cuando se trata de un Centro Educativo Básico Especial (CEBE) y en otros casos tampoco responde a las condiciones contextuales en la que se encuentra.
Los Cebes existentes en el distrito de SJL no se dan abasto, una de las posibles razones es que el distrito alberga la mayor población de niños con estos tipos de discapacidades y además son un sector de la población que no se ha tomado en total consideración.

No hay comentarios:
Publicar un comentario
Es importante tu comentario o sugerencia, gracias por participar.