TOVA es —aseguran desde el IAAC— el primer edificio de España levantado con barro y una impresora 3D. Para darle forma sus creadores utilizaron solo una grúa WASP, diseñada ya para trabajos arquitectónicos, y materiales de “kilómetro cero” que se obtuvieron en el propio entorno. Tampoco fue necesaria una gran inversión de tiempo: en siete semanas ya estaba en pie.
“El proceso de construcción no ha generado residuos, ya que los materiales se obtuvieron en un radio de 50 metros. La estructura fue realizada con barro local, mezclado con aditivos y enzimas, para conseguir la integridad estructural y elasticidad del material necesarias para la impresión 3D optimizada”, zanja la institución catalana. En los cimientos utilizaron geopolímero y en el techo se empleó madera. Con el propósito de garantizar su aguante se añadió una capa impermeable elaborada a base de materias primas tan básicas como el aloe o la clara de huevo.
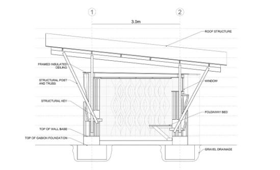
A la hora de diseñarlo los expertos han tenido en cuenta además las condiciones climáticas que afrontará la construcción en el Mediterráneo, con una estructura adaptada tanto al frío del invierno como a las altas temperaturas de los meses de verano. Una de las claves del diseño es la red de cavidades que conforman los muros, lo que evita la pérdida de calor y protegen del sol.
Sus responsables inciden en las ventajas de la construcción: aseguran que su huella de carbono es casi nula y no se generan residuos. “Los métodos de construcción actuales son responsables del 36% de las emisiones de CO2, TOVA es un ejemplo pionero de edificación baja en carbono”.
La combinación ofrece algunas ventajas interesantes, como la sencillez del proceso, en el que se ahorra por ejemplo la logística que implica el transporte de materiales, su bajo coste, lo versátil que resulta el proceso, su escasa huella contaminante o la facilidad para gestionar los restos una vez el edificio cumple su misión y vida útil.
La escasez de mano de obra y recursos que implica lo convierte además en una idea interesante para situaciones de emergencia en la que urge habilitar residencias de forma rápida y sencilla. “A mí me encantaría vivir en una casa de estas características”, zanja.
Quién sabe, puede que tu próxima casa esté levantada con materiales más parecidos a las de las antiguas viviendas de adobe que de los grandes rascacielos de Nueva York. De momento lo que ya ofrece el IAAC son algunas infografías que nos permiten apreciar cómo sería su aspecto final.
El edificio tiene en cuenta las condiciones climáticas del Mediterráneo: el volumen es compacto para protegerse del frío en invierno, pero se puede abrir y expandir durante las otras tres estaciones del año para disfrutar del exterior. Los muros están formados por una red de cavidades que aislan y permiten contener el aire, de modo que se evitan pérdidas de calor en invierno, mientras que en verano protegen de la radiación solar.
Se trata de un proyecto con emisiones de carbono cercanas a cero ya que su envolvente y el uso exclusivo de un material local se traducen en la reducción de residuos. Teniendo en cuenta que los métodos constructivos actuales son responsables del 36% de las emisiones de CO2, TOVA es un ejemplo pionero de edificación baja en carbono.
Las posibles aplicaciones de este modelo de construcción son infinitas: desde viviendas hasta espacios públicos, tanto en interiores como en exteriores. En combinación con otros sistemas constructivos, puede dar lugar a edificaciones complejas e innovadoras que reducirían el impacto ambiental de la construcción.
Sobre IAAC
El Instituto de Arquitectura Avanzada de Cataluña (IAAC) es un centro de investigación, formación, producción y comunicación, ubicado en Barcelona, que cuenta con 17 años de actividad.
Su objetivo es liderar la misión de imaginar el futuro hábitat de nuestra sociedad y construirlo en el presente. IAAC sigue la revolución digital a todas las escalas para ampliar las fronteras de la arquitectura y del diseño, y abordar los desafíos a los que se enfrenta la humanidad. IAAC es un centro experimental y vivencial donde se aprende haciendo, a través de una metodología de experimentación que promueve soluciones reales.
Sobre WASP
WASP – World’s Advanced Saving Project es una empresa fundada en 2012 en Massa Lombarda (Ravenna- Italia) que diseña, produce y vende impresoras 3D Made in Italy en todo el mundo. La amplia gama de impresoras 3D WASP se ha desarrollado para dar respuesta a las necesidades humanas en: alimentación, vivienda, salud, energía, trabajo, arte y cultura. Inspirada en la avispa alfarera, que construye su nido con material del entorno, WASP nació con el objetivo de desarrollar impresoras 3D a gran escala, para construir casas con materiales naturales y de cercanía.
El principal objetivo de la empresa es beneficiar a la sociedad a través de la innovación tecnológica y de la investigación. En 2012, WASP presentó su primera impresora, la Power WASP, pero poco después introdujo la línea Delta de pequeñas y grandes dimensiones hasta la generación de la línea Delta WASP Industrial WASP 3MT, WASP 4070 y WASP 2040.
Actualmente la línea Delta WASP Clay es líder en el mercado gracias también a la experiencia adquirida en el campo de la arquitectura. Estas nuevas impresoras 3D Clay optimizan el sistema LDM mediante la impresión 3D de materiales densos, fluidos y arcillas industriales de forma continua y en grandes dimensiones.
En 2021, WASP ha presentado más avances tecnológicos en las impresoras 3D de gran tamaño de la línea Industrial y la línea Clay que atienden las demandas del mercado para la extrusión de biopolímeros, supertecnopolímeros, materiales reciclados, pellets, material natural, tierra y arcilla industrial.
Créditos del proyecto
Equipo IAAC
Edouard Cabay, Alexandre Dubor, Lili Tayefi, Vincent Huyghe, Ashkan Foroughi, Eduardo Chamorro Martin, Elisabetta Carnevale, Guillem Baraut, Gloria Font basté, Nikol Kirova, Francesco Polvi, Bruno Ganem Coutinho, Marielena Papandreou y David Skaroupka.
Socios del proyecto
Colette, WASP, UN-Habitat, BAC Engineering, LaSalle, Smart Citizen, Squares and Living Prototypes Research Innovation.
Investigadores
Adel Alatassi, Aslinur Taskin, Charles Musyoki, Deena El-Mahdy, Eugene Marais, Hendrik Benz, Juliana Rodriguez Torres, Leonardo Bin, Mariam Arwa, Al-Hachami, Marwa Abdelrahim, Mehdi Harrak, Michelle Bezik, Michelle Antonietta Isoldi Campinho, Mouad Laalou, Nareh, Khaloian Sarnaghi, Nawaal Saksouk, Orestis Pavlidis y Seni Boni Dara.
Agradecimientos
Areti Markopoulou, Mathilde Marengo, Ricardo Mayor, Shyam Zonca, Pilar Xiquez, Ariannet Arias, Gabriel Frederick, Nicolas Rodriguez, Daniela Figueroa Claros, Laura Ruggeri, Xavier Molons, Jorge Ramirez, Jordi Guizán Bedoya, Massimo Visiona, Massimo Moretti y Francesca Moretti.
3DPA participa en el proyecto colaborativo Living Prototypes y cuenta con el apoyo del Instituto Federal de Investigación para la Construcción, Asuntos Urbanos y Desarrollo Territorial del Ministerio del Interior, Construcción y Comunidad con fondos del programa de innovación en investigación Zukunft Bau.
WASP RRSS
Facebook 3dwasp
Imágenes: IAAC/ I
FUENTES DE INFORMACION
https://iaac.net/project/3dpa-prototype-2022/
https://lacarabuenadelmundo.com/tova-primer-edificio-3d-de-espana-construido-con-crane-was/
httpswww.echocommunity.orgesresourcesab8de33d-4987-4c99-b2b8-8e703475f569
https://fotos.habitissimo.cl/foto/casa-de-bloques-de-tierra-comprimida-en-segundo-piso_181905


No hay comentarios:
Publicar un comentario
Es importante tu comentario o sugerencia, gracias por participar.