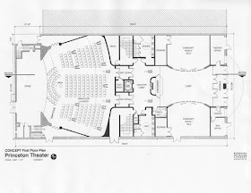
Los Auditorios son espacios de encuentro donde los espectadores concurren para escuchar música, el discurso de un orador o presenciar cualquier otra actividad artística y cultural relacionada a la propagación del sonido. Mostramos a continuación una selección de diferentes auditorios que obedecen a diferentes alternativas formales y funcionales.
La función básica de un auditorio es la difusión del sonido desde un punto emisor hacia los espectadores o auditores, de tal modo que el sonido llegue muy claro a todos por igual, por tal motivo, el diseño del Auditorio será en función de como se propagan las ondas sonoras, el diseño de la zona de espectadores, los muros y techos que la cubren deben servir para propagar de manera eficiente las ondas sonoras, evitando el eco y todo lo que impida una audición clara y perfecta.
Una manera de entender fácilmente como se propaga el sonido en el espacio, es observar como un goteo continua cae sobre un recipiente con agua, cada vez que la gota cae al agua en calma, se observa una onda que nace del lugar del impacto y se propaga de manera uniforme en 360 grados, las ondas van formando círculos concéntricos cada vez mas débiles hasta que desaparecen.
























































No hay comentarios:
Publicar un comentario
Es importante tu comentario o sugerencia, gracias por participar.