Los Arquitectos, nunca han disfrutado de una posición de tanta importancia como lo hicieron en la cosmovisión de Buckminster "Bucky" Fuller. Para él, los arquitectos solo eran capaces de entender y navegar entre las complejas interrelaciones de la sociedad, la tecnología y el medio ambiente, como se ve a través del paradigma integral de la teoría de sistemas.
En este modelo, se pretende que exista un estrecho contacto tanto con la humanidad y la naturaleza, que juega el papel más importante de la civilización en la elevación del estado de la humanidad y la promoción de su administración responsable del medio ambiente.
Fue a partir de este contexto social y filosófico que Fuller concibió su diseño para la Biosfera de Montreal, el pabellón de los Estados Unidos para el 1967 en la Exposición Mundial. Durante casi veinte años, Fuller había estado perfeccionando sus diseños de domos geodésicos, que se desarrollan en Estados Unidos con edificios de esferas con aspecto campos experimentales .
Su obsesión con este tipo particular de estructura surgió de sus intereses en la eficiencia de los materiales, la integridad estructural y la modularidad, los ingredientes clave de lo que esperaba que se convertiría en una intervención de diseño fácilmente replicable sostenible. Implementar estas cúpulas todas partes, desde restaurantes a instalaciones militares.
De todas las cúpulas de Fuller, la biósfera es quizás la más espectacular. La esfera expansiva alcanza la asombrosa cantidad de sesenta y dos metros hacia el cielo y domina completamente la isla en la que se encuentra.
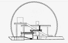
El volumen contenido en su interior es tan amplio que se ajusta cómodamente a un edificio de exposiciones de siete pisos con los diversos elementos programáticos de la exposición. Incluso en medio de otras atracciones, incluyendo elementos tan impresionantes como la Exposición de acero cableado del Pabellón Alemán de Frei Otto y el Hábitat icónico de Moshe Safdie 67.La Biosfera fué la reina suprema, del evento que trajo a 5.300.000 visitantes dentro de los seis meses de su apertura.
El volumen contenido en su interior es tan amplio que se ajusta cómodamente a un edificio de exposiciones de siete pisos con los diversos elementos programáticos de la exposición. Incluso en medio de otras atracciones, incluyendo elementos tan impresionantes como la Exposición de acero cableado del Pabellón Alemán de Frei Otto y el Hábitat icónico de Moshe Safdie 67.La Biosfera fué la reina suprema, del evento que trajo a 5.300.000 visitantes dentro de los seis meses de su apertura.
Geométricamente, la cúpula es un icosaedro, una forma de 20 caras formadas por la ubicación de pentágonos en una rejilla hexagonal. Sin embargo, la claridad de esta forma está debilitada por la gran fragmentación de sus caras, que se subdividen en una serie de triángulos equiláteros con distorsiones menores que inclinan las secciones planas individuales en conchas.
Como resultado, la composición total de la cúpula es sustancialmente más esférica que el simple icosaedro, mientras que las unidades más pequeñas crean complejidad visual deslumbrante por su repetitividad. Esta estructura de tipo reticular se crea enteramente de tubos de acero de tres pulgadas, soldadas en las articulaciones y adelgazando suavemente las secciones de los tubos hacia la parte superior de la estructura con el fin de distribuir de manera óptima las fuerzas de todo el sistema.
Originalmente cubierta con una membrana delgada de acrílico que fue destruida por un incendio en 1976, la cúpula construida originalmente era más opaca y visualmente sólida que la versión actual. Sin embargo, su actual desnudez estructural, crea una transparencia muy legible que revela plenamente el ingenio de diseño de Fuller.
No hay comentarios:
Publicar un comentario
Es importante tu comentario o sugerencia, gracias por participar.